
LE BOUILLON : VERSAILLES RIVE GAUCHE
Situé au cœur de Versailles, le bouillon Versailles rive gauche réinterprète l’esprit des brasseries populaires dans une version contemporaine, chaleureuse et élégante. Notre approche d’architecture intérieure a tout d’abord consisté à créer un lieu accueillant, où le confort d’un décor authentique rencontre la finesse d’une écriture plus actuelle.
Le restaurant est enveloppé de teintes crème et terracotta ce permet de diffuser une lumière douce et chaleureuse. Les murs, habillés de moulures et de cadres, accueillent une sélection d’affiches de réclame inspirées de l’Art nouveau, apportant une touche graphique et nostalgique qui renforce l’âme du lieu.
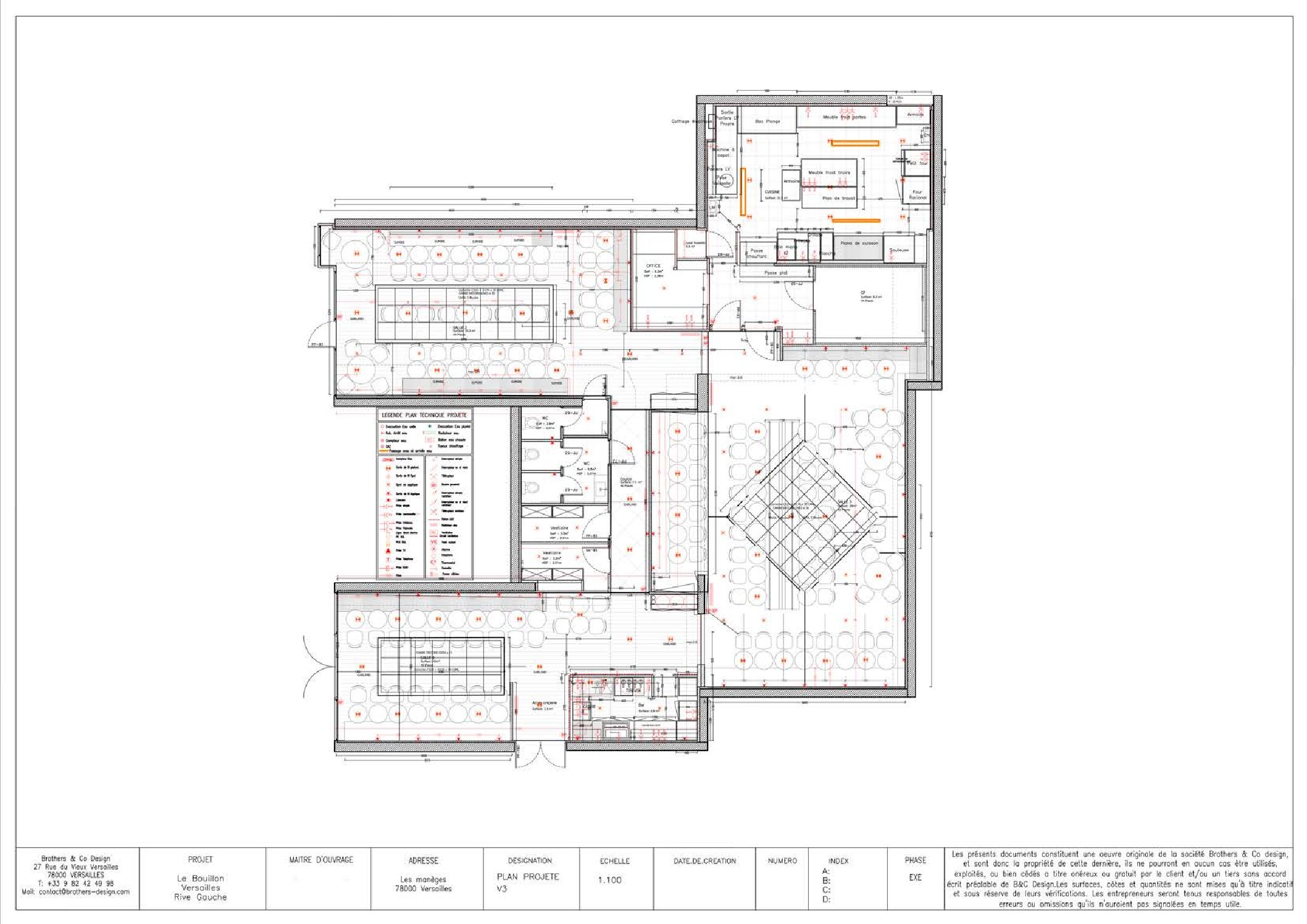
Au sol, un parquet massif dessine un motif losange au centre de la grande salle. Ce geste décoratif devient l’élément structurant de l’espace, mis en valeur par un jeu de symétrie parfaitement réfléchi. En écho, un carré mouluré au plafond reprend cet axe central et s’habille de miroirs, créant une sensation de hauteur, de profondeur et d’élégance. Cette composition sol/plafond devient la signature du projet, guidant le regard et révélant la cohérence architecturale du restaurant.
L’ensemble compose ainsi d’une ambiance cosy, populaire et raffinée — fidèle à l’esprit des bouillons traditionnels, tout en affirmant une identité résolument contemporaine. Un lieu pensé pour recevoir, partager et savourer, où chaque détail participe pleinement à l’expérience.
PROJET | Rénovation d’un restaurant – Le Bouillon – Versailles – Client professionnel

